Santarém, Benavente, Santo Estevão, Centro
Terreno Urbano com 444 m2 projeto de Arquitetura Aprovado na Urbanização Quinta da Cegonha em Santo Estevão lote nº 67.
Venha conhecer a pacata vila ribatejana e receba um ambiente que respira bom gosto, qualidade e tranquilidade, local certo e ideal para construir a sua casa de sonho, porque a sua Família merece.
Acessos facilitados, a 36 km do Montijo e Ponte Vasco da Gama, 60 Km do Aeroporto e da Grande Lisboa e a 65 km de Santarém.
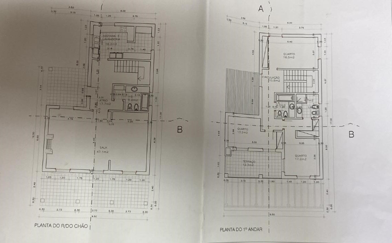
Lote com 453 m2, para construção de Moradia com 2 pisos, estando aprovado, Moradia Modelo E .
Modelo E
- T2 com 185 m2 área útil + 30 m2 área dependente
- T2 com 176 m2 área útil + 30 m2 área dependente
- T3 com 198 m2 área útil + 30 m2 área dependente
Grande oportunidade de negócio..
Antecipe-se a outros possíveis interessados!..
Agende já a sua visita.
Através da nossa equipa de especialistas intermediários de crédito autorizados pelo BP 0006202, acompanhamos o processo de financiamento de início ao fim!